
2628 Rue de Trieste
Terrebonne (Terrebonne)
Terrebonne (Terrebonne)
Vendu
Maison de plain-pied à vendre
Située dans le très recherché Domaine de Provence à Terrebonne tout près de l'autoroure 640, cette superbe propriété offre un cadre familial dans un secteur paisible et sécuritaire à proximité des services. Une occasion idéale pour combiner qualité de vie et emplacement recherché.
2
2+1
5065pc
Présenté par
Michel Gravel
Courtier immobilier résidentiel
Bâtiment
Armoires
Bois
Mode de chauffage
Plinthes électriques
Approvisionnement en eau
Municipalité
Énergie pour le chauffage
Électricité
Fenêtres
PVC
Fondation
Béton coulé
Foyers-poêles
Foyer au bois
Piscine
Hors-terre
Sous-sol
6 pieds et plus, Totalement aménagé
Système d'égouts
Municipal
Type de fenêtre
Coulissante, Manivelle, Porte-fenêtre
Construit en
1989
Terrain
Allée
Asphalte, Double largeur ou plus
Revêtements
Aluminium, Brique
Proximité
Cegep, École primaire, Garderie/CPE, Parc-espace vert, Piste cyclable, Transport en commun
Stationnement
Extérieur(5)
Toiture
Bardeaux d'asphalte
Topographie
Plat
Dimensions
50pi x 100pi
Autres caratéristiques
Zonage
Résidentiel
Évaluation
Évalué en 2025
Inclusions
Fixture, stores et rideaux. Lave-Vaisselle Samsung 8ans, Balayeuse centrale et ses accessoires, Air clim amovible mur salle à diner. Piscine hors-terre 18 pieds en résine environ 25 ans d'âge avec ses accessoires. Coffre bois de foyer au sous-sol avec son contenu. Environ 2 cordes de bois dans la cours. Section d'échelle aluminium accroché à la clôture.Exclusions
Les deux barres d'appuis près de la toilette dans la salle de bain au RDC.2628 Rue de Trieste , Terrebonne (Terrebonne)
19731702
Pièces
Pièce
Étage
Plancher
Informations
Hall d'entrée(7.8x4 pi.)
Rez-de-chaussée
Céramique
Cuisine(9.8x8.8 pi.)
Rez-de-chaussée
Céramique
Salle à manger(15.8x9.6 pi.)
Rez-de-chaussée
Céramique
Chambre à coucher principale(13x12.10 pi.)
Rez-de-chaussée
Parqueterie
Salle de bains(10x9.4 pi.)
Rez-de-chaussée
Céramique
Chambre à coucher(12.10x8.7 pi.)
Rez-de-chaussée
Parqueterie
Salon(15x14 pi.)
Rez-de-chaussée
Plancher flottant
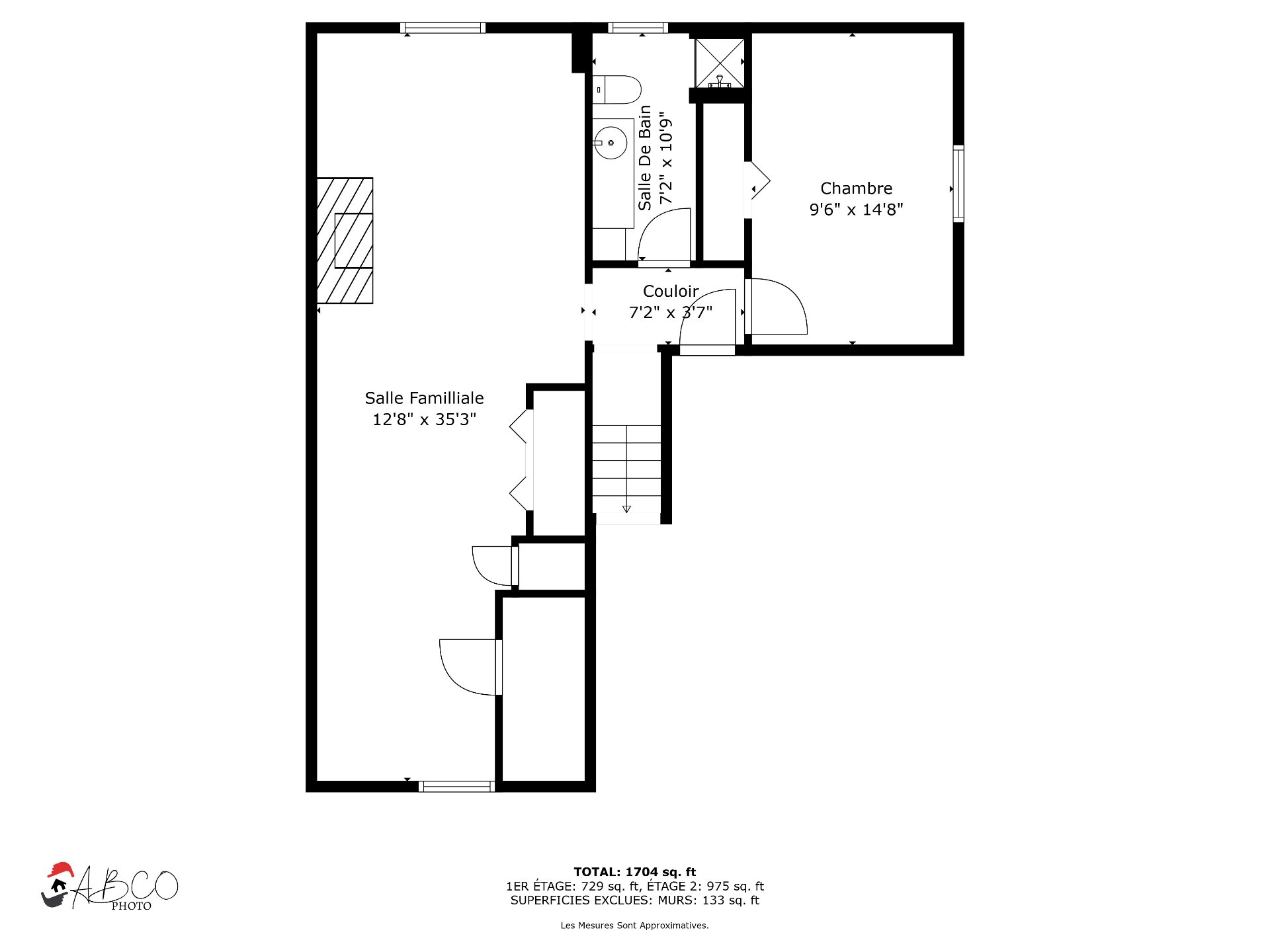
Salle familiale(34.9x12.4 pi.)
Sous-sol
Plancher flottant
Salle de bains(10.6x4.10 pi.)
Sous-sol
Céramique
Chambre à coucher(14.8x9.6 pi.)
Sous-sol
Tapis
2628 Rue de Trieste , Terrebonne (Terrebonne)
19731702
Photos















2628 Rue de Trieste , Terrebonne (Terrebonne)
19731702
Photos















2628 Rue de Trieste , Terrebonne (Terrebonne)
19731702
Photos

2628 Rue de Trieste , Terrebonne (Terrebonne)
19731702
Addenda
Rez-de-chaussée 2 chambres à coucher Salle de bain adaptée avec bain et douche sans seuil Cuisine avec armoires en bois (chêne) Salle à manger conviviale Salon lumineuxSous-sol Spacieuse salle familiale agrémentée d'un foyer au bois 1 chambre supplémentaire 1 salle de bain avec douche
À noter : la petite chambre du rez-de-chaussée est présentement encombrée. La photo présentée a été virtuellement aménagée afin d'illustrer tout le potentiel de la pièce.
Située à proximité du Parc Comptois, vous profitez d'un environnement familial offrant de nombreuses installations : chalet accessible l'hiver (selon l'état des patinoires extérieures), modules de jeux, terrains de basketball, tennis, volleyball, skateboard, jeux d'eau et bien plus.
Le courtier du Vendeur informe tout Acheteur qui n'est pas représenté par un courtier immobilier, que celui-ci est mandaté à défendre et promouvoir les intérêts du Vendeur. Par conséquent, le courtier du Vendeur ne représente pas et ne défend pas les intérêts d'un Acheteur. En vertu de la loi sur le courtage immobilier, nous recommandons à l'acheteur de se faire représenter par le courtier de son choix.
Dans le cas où l'Acheteur choisissait de ne pas se faire représenter par un autre courtier, un document à signer lui sera remis, reconnaissant avoir lu, compris et consentir à recevoir un traitement équitable du courtier du Vendeur.
Le foyer et la cheminée sont vendus sans garantie quant à leur conformité à la réglementation applicable ainsi qu'aux exigences imposées par les compagnies d'assurances.
Chauffe eau est 2012
2628 Rue de Trieste , Terrebonne (Terrebonne)
19731702